Villa - Florida,USA
Material Supplied : New Ariston White marble, Ice Grey Marble
Project Location : Florida,USA
Scope : Flooring , Wall, Waterjet Mosaic pattern
New Ariston White Marble, As a natural marble, its with subtle, soft grey veining. It's elegant something like Statuario, offering a more serene, bright.
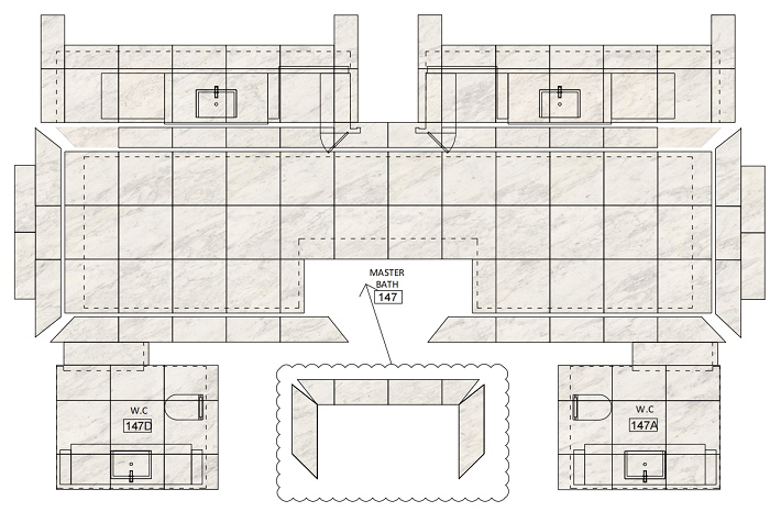
Digital Cutting Plan for approval before cutting

Drylay Photos at factory for approval
Site Installation Photos




Get the latest price? We'll respond as soon as possible(within 12 hours)
Products
Featured Products
Contact Details




